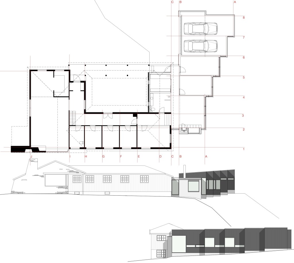
Tilbygg til verneverdig enebolig fra 1960 tegnet av Bjarne Sandbakken i 1960 som bolig til han selv og hans familie. Stilhistorisk tilhører boligen etterkrigstidens nasjonale modernisme inspirert av naturformer og folkelig arkitektur med vektlegging av samspill med landskapet og bruk av rustikke naturmaterialer.
I utformingen av tilbygget har vi søkt å ta vare på den opprinnelige boligens kvaliteter og etablere en lesbar situasjon med et tydelig skille mellom det opprinnelige huset og det nyere tilbygget. Tilbygget er underordnet det gamle huset, og plasseringen på nordsiden av eksisterende hus gjør at de viktigste fasadene på det gamle huset er uberørt av tiltaket. Tilbygget er gitt et moderne formspråk som i noen grad kontrasterer det gamle huset mht. takform, vindusformater og detaljering. Stående beiset trepanel binder likevel tilbygget sammen med det gamle huset.
Boligen ligger høyt og fritt over Trondheim sentrum og fjorden med utsikt mot øst og nord. Det gamle huset er tegnet med en vellykket kombinasjon av smårutede soveromsvinduer og store vinduer uten sprosser i stue og mot atriet. Dette gjør det uproblematisk å legge opp til store vindusflater i nord- og østfasaden på tilbygget.
- Byggeår: 2012
- Bruttoareal: 100m2
- Entreprenør: Bekken Bygg AS
