Eneboligen er løst innenfor en enkel rektangulær bygningskropp med et slakt saltak. Boligens oppholdsrom er organisert rundt et sentralt dobbelthøyt rom. Et stort vindusfelt i front strekker seg over begge etasjene.
- Byggeår: 2004
- Areal: 200m2
- Entreprenør: Thilo Kimmeritz
Sørfasade mot hagen. Huset er organisert rundt den dobbelthøye spisestuen.
Plan 1
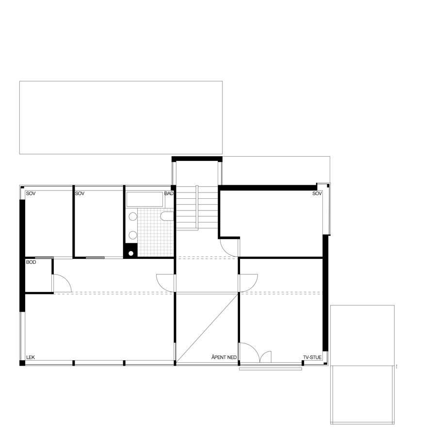
Plan 2